Pedestrian Bridge Design
Description
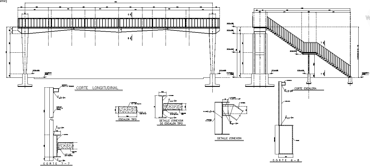
Pedestrian Bridge Design DWG file, The triangular pieces of Truss bridges are manufactured from straight and steel bars, according to the truss bridge designs.Pedestrian Bridge Design Detail.

Uploaded by:
Eiz
Luna
